项目价值分析报告
9.5
综合评分
-
项目户型 9.0
-
交通配套 9.2
-
教育配套 10.0
-
生活配套 9.7
-
交通配套
在楼盘周边3公里范围内,便捷的交通网络覆盖了3个地铁站(包括七莘路、虹莘路、莘庄),其中最近的七莘路地铁站距离项目仅一步之遥。此外,周边1公里内设有22个公交站点,最近的秀涟路秀文路站距离项目仅68米,公共交通设施极为完善。
-
教育配套
在教育方面,项目周边3公里范围内分布着51所幼儿园,14所小学,包括闵行区七宝镇明强小学西校区、上海市明星学校-明星中心小学、新梅小学、莘庄镇小学、上海市松江区九亭第二小学等。同时,周边还有22所中学,如上海市民办协和双语尚音学校、上海市文来中学初中部、花园学校、莘松中学(水清路校区)、莘松中学等,为孩子们的成长提供了优质的教育资源。
-
生活配套
在医疗资源方面,项目周边3公里范围内拥有6家一级及以上医院,包括上海摩尔同乐口腔医院、复旦大学附属闵行医院、上海蓝十字脑科医院等,为居民的健康提供了坚实的保障。此外,周边3公里范围内还有14家商场,如莘庄维璟印象城、美莘商业广场、东苑丽宝广场、凯德闵行商业中心等,为居民的日常生活提供了丰富的购物选择。同时,周边生态环境优越,3公里范围内有43个公园,最近的公园仅451米之遥,为居民提供了便利的休闲场所。
免费解锁分析报告
售楼处优惠活动
限时闪购周
售楼部举办限时闪购活动参与即享优惠
63人已参与
报名还剩3天
立即报名
免费专车接送
预约专车即可享免费专属座驾接送
225人已参与
报名还剩14天
立即报名
楼盘动态
了解更多楼盘详细
- 闵行房管(2024)预字0000184号
- 2024-07-30
- 住宅
- 上海中华企业股份有限公司
- 板楼
- 70年
- 2026-08-30
- 388
- 上海古北物业管理有限公司
- 住宅6元/㎡/月
- 20930
- 41860
- 暂无信息
- 35%
- 2.00
- 有装修
楼盘问答
全部问题-
202302807的状况如何,最近打算去看看,不知道有没有房源?
13***33楼盘整体表现还可以,但建议亲自去看看,这样才能更直观地了解情况。可以咨询一些专业人士或者经常跑盘的人士,避免浪费时间和精力。买房还是要多比较几家,不要盲目决定。 -
总体来说还不错,但还是建议亲自去看看,多咨询一些专业人士,避免盲目。买房还是多比较几家,选最适合自己的。
向置业顾问咨询楼盘信息
楼盘点评
全部点评
159****7483
现在的单价大约是143000元/平方米,交房后就能直接入住新家,期待全新的生活。
157****9396
单价大约14万3一平,交房就能入住,挺期待搬进新家后的生活。
154****9598
目前每平方米的价格大约在143000元,交房后就可以直接入住新家。对未来的新生活充满期待。
我也要点评一下
为您推荐
了解更多免责声明
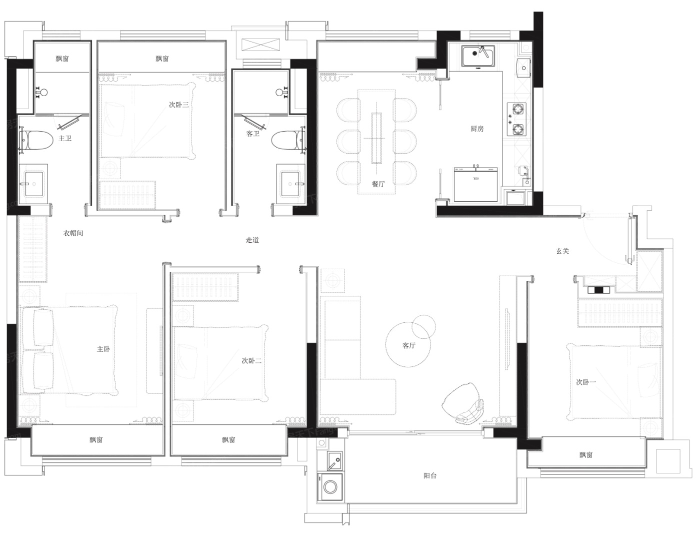
本网呈现的户型图为第三方提供的非标准的参考户型图或根据第三方提供的户型图通过系统/技术等手段生成的非标准的参考户型图,不应作为您交易的决策依据。户型图上呈现的户型、面积、朝向、内部结构、功能分区仅供展示参考,实际信息请以与开发商签订的商品房买卖合同为准。 详细请阅读 《重要风险提示》 。

